Eladó lakás Budapest XII. ker 264 000 000 Ft

Leírás


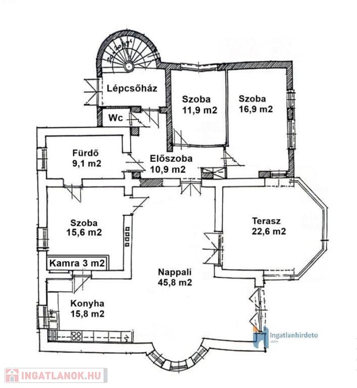
Elhelyezkedése: Társasház Emeleti elhelyezkedés: Félemelet Tájolása: Dél-keleti tájolású Állapota: Jó Komfort besorolása: összkomfortos Építési éve: 1916 Alapterülete: 135 m2 Szobák száma: 4szoba Felújított: Felújított Felújítás éve: 2002 Fűtés típusa: Házközponti Homlokzat állapot: Jó Építési mód: Tégla Parkolási lehetőség: Telken Kilátás: Parkra nyíló kilátás Jellemzői: Alacsony rezsi, Csendes környék, Jó közlekedés Energetikai besorolás: Nincs adat Egyéb jellemzők: Terasz
12. kerületben, Mártonhegyen eladó egy 135 m2-es, 4 szobás, nagy teraszos (22,6 m2) jó állapotú, csendes, villa lakás.

A villa lakást 2002-ben teljeskörűen felújították, amely során kicserélték a víz és villanyvezetékeket, szanitereket, burkolatokat, fűtésrendszert (padlófűtés az egész lakásban) és konyhabútort.

A villát 1916-ban a Ráday család építette 50 cm-es mészkőfalakból, melyet 2000-2002 között teljesen helyreállítottak (vízvezeték rendszer, elektromos hálózat, csatornahálózat, fűtésrendszer, burkolatok) és külső szigetelést (15 cm) kapott. Az épület 3 szintes és 3 lakásos.

Az épület tetején egy hatalmas közös használatú városra panorámás terasz, illetve az épület körül közös kert biztosítja a lakók kikapcsolódását és nyugalmát.

A villa lakás további jellemzői:
- azonnal birtokba vehető
- DK-i fekvés
- belmagasság 3,2 m
- mészkőből rakott kandalló
- beépített konyha gépekkel (főzőlap, sütő, elszívó, mosogatógép)
- redőnyös ablakok
- sarokkádas fürdőszoba
- alacsony rezsi

Fűtés: házközponti (átalány 24.000 Ft/hó)

A lakáshoz tartozik egy mosókonyha, valamint a kertben egy fedett autóbeálló.

Közlekedés: buszok (102, 110, 112) villamosok (59, 59A, 59B) éjszakai járat (990) pár percen belül elérhetőek.

Közelben: Magyar-sváb általános- és középiskola (Tamási Áron iskola) 2 perc gyalog. Nemzetközi óvoda 500 méterre van, az amerikai, brit és osztrák iskolák autóval 5-10 percen belül. Bevásárlási lehetőségek, óvoda, iskola, bankok, posta, gyógyszertár stb.

További információért kérem, hívjon bizalommal, majd nézze meg személyesen, és tegyen egy ajánlatot!

Lakás részletei

Ár: 264 000 000 Ft
Méret: 135 négyzetméter
Azonosító: 11557953
Emelet: Félemelet
Építőanyag: Tégla
Fűtés jellege: Házközponti
Ingatlan állapota:
Komfort fokozat: Összkomfort
Építési év: 1-5 éves
Elhelyezkedés: Társasház
Kilátás: panorámás
Egész szobák: 4

Térkép